BLISS TRS14562AH
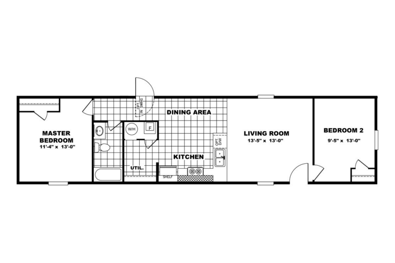
The Bliss TRS14562AH is a luxurious two-bedroom mobile home that is perfect for creating a comfortable and relaxed lifestyle for you and your family. Constructed with a 56′ x 14′ frame and 765 sqft of total living space, this home is spacious enough to provide plenty of room for everyone to relax and enjoy themselves.
The home is equipped with two bedrooms and one large bathroom, giving everyone plenty of personal space. The living area is designed to create an inviting atmosphere for entertaining. It features a large living room with plenty of room for entertaining, a cozy modern kitchen, and an adjacent dining area. The large windows and neutral tones of the interior give a bright and airy feel to the home.
The exterior of the home is also designed with modern style and convenience in mind. A durable metal roof is designed to last for many years, while the low-maintenance siding ensures that the home stays looking great. The home also features a covered porch, that’s the perfect place to relax and enjoy the outdoors.
Overall, the Bliss TRS14562AH is the perfect home for those who want to enjoy a life of comfort and style. Its spacious living area, modern interior, and durable exterior make it the perfect place to call home.
Specifications:
- 56′ x 14′
- 765 SQFT
- 2 BEDROOMS
- 1 BATHROOM


















