Odyssey 2868
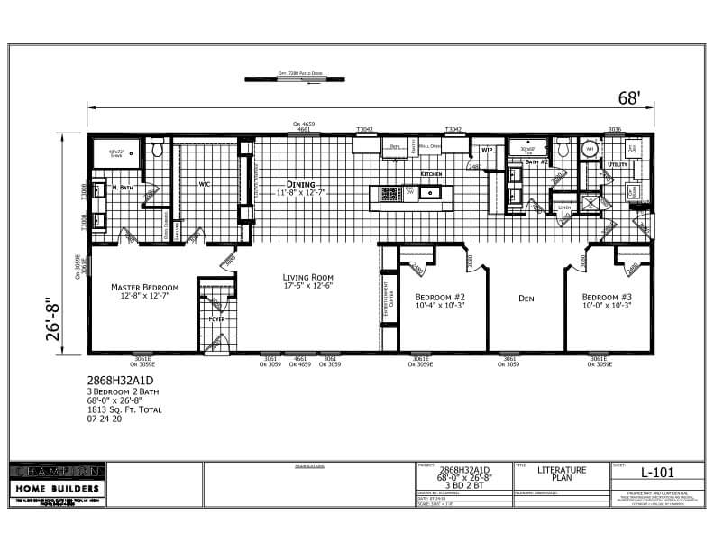
Welcome to your piece of paradise! Introducing the Odyssey 2868, a luxurious 68- x 26′-8″ modular home with 1800 square feet of living space and plenty of room for your family to spread out and relax.
Boasting 3 bedrooms and 2 bathrooms, you and your family will have enough room to live comfortably and plenty of entertaining space.
The Odyssey 2868 is designed to capture the beauty and charm of the beach lifestyle with its bright and airy open floor plan, modern coastal decor, and light fixtures. Natural light floods the home to create an inviting and calming atmosphere that is perfect for unwinding after a long day.
The living area provides an inviting space, with plenty of room to stretch out and relax or to entertain friends and family. The spacious kitchen is perfect for preparing meals together or hosting dinner parties.
Cook up something delicious on the stovetop and store your ingredients in the ample cabinets. And if the weather permits, take advantage of the outdoor decking space to entertain outdoors.
The bedrooms provide a peaceful and comfortable place to rest and relax. The primary suite is spacious, with a private bathroom and two walk-in closets. The two additional bedrooms are perfect for children, guests, or a home office.
The Odyssey 2868 is not just a place to live but an opportunity to find a balance between modern style and the calming atmosphere of the beach. Bring the sun and sand of the coast to your lifestyle with this stunning home!
Specifications:
- 68′ x 26′-8″
- 1800 SQ FT
- 3 Bedrooms
- 2 Bathrooms



